Oosterzele

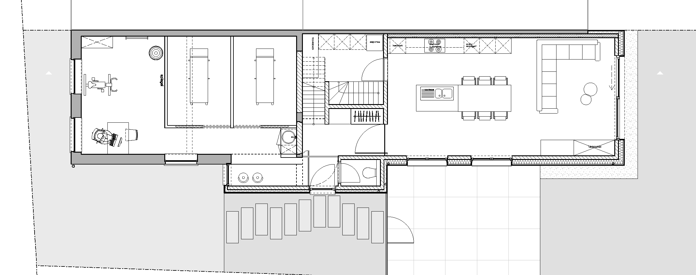
Verbouwing woning met praktijkruimte

Jaar

Start werken: mei 2021

Type

Halfopen

Omschrijving

Verbouwing woning
Foto's oorspronkelijke toestand
Verbouwing van een eengezinswoning tot een woning met kine-praktijk. Ondanks de gemeenschappelijke inkom wordt er een strikte scheiding gemaakt creëert tussen werk en privé door middel van een mobiele wand. Hierdoor kunnen beide functies volledig zelfstandig naast elkaar bestaan.