
Plaatsbezoek en kennismakingsgesprek
Je hebt nieuwbouwplannen of plannen om te verbouwen, privé of zakelijk. Je zoekt een architect om jouw wensen te vertalen naar een ontwerp? Bij een eerste samenkomst leren we elkaar kennen en overlopen we jullie wensen en eisen om tot jullie droomwoning te komen. We bespreken de nodige ruimten en relaties, en toetsen dit af aan het beschikbaar budget. Een (t)huis bouwen betekent niet voor iedereen hetzelfde, vaak zijn er specifieke wensen naar indeling en stijl van de woning.
Het is dan ook wenselijk dat op dit moment alle nodige informatie (bouw- of verkavelingsvoorschriften, opmetingsplannen landmeter, budget, ...) voorhanden is die van toepassing is op de nieuw te bouwen of te verbouwen woning. Hiervoor raden we aan om op voorhand te informeren bij de dienst stedenbouw van uw gemeente.
Wij gaan voor een open en transparante aanpak, waarbij het belangrijk is dat zowel jullie als wijzelf 100% op ons gemak zijn. Alleen op deze manier kunnen we samen een aangenaam en efficiënt traject bewandelen. Wij vertellen jullie hoe we jullie project zullen aanpakken, en jullie vragen ons alles wat jullie verder willen weten.
Het is dan ook wenselijk dat op dit moment alle nodige informatie (bouw- of verkavelingsvoorschriften, opmetingsplannen landmeter, budget, ...) voorhanden is die van toepassing is op de nieuw te bouwen of te verbouwen woning. Hiervoor raden we aan om op voorhand te informeren bij de dienst stedenbouw van uw gemeente.
Wij gaan voor een open en transparante aanpak, waarbij het belangrijk is dat zowel jullie als wijzelf 100% op ons gemak zijn. Alleen op deze manier kunnen we samen een aangenaam en efficiënt traject bewandelen. Wij vertellen jullie hoe we jullie project zullen aanpakken, en jullie vragen ons alles wat jullie verder willen weten.
Kennismaken. Verkennen. Schetsen.
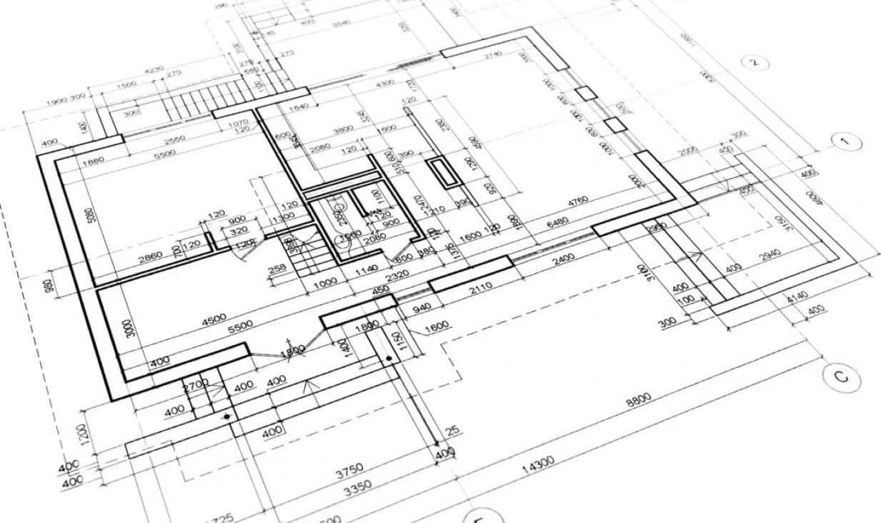
Voorontwerp
Reeds vanaf het begin gaan we samen in dialoog om tot een harmonieus geheel te komen. Op basis van jullie wensen en budget creëren we een eerste voorontwerp. Indien het een verbouwing betreft, zullen wij eerst de bestaande toestand uittekenen op basis van een opmeting of bestaande plannen. Dit voorstel wordt aan jullie gepresenteerd aan de hand van plannen, schetsen en/of een 3D-visualisatie zodat jullie een goed beeld krijgen van het ontwerp. Samen verfijnen we het ontwerp tot jullie wensen in werkelijkheid worden omgezet.
Ontwerpen. Bespreken. Verfijnen.


Omgevingsvergunning
Vanaf dat jullie tevreden zijn met het ontwerp, werken wij de plannen verder uit. We verzamelen alle documenten die nodig zijn om de stedenbouwkundige aanvraag in te dienen via het digitale Omgevingsloket. Eens alles online geplaatst is, kan de aanvraag digitaal ondertekend en ingediend worden. Vanaf hier starten de wettelijke termijnen van de vergunningsprocedure.
Tekenen. Indienen. Wachten.
Uitvoeringsdossier
Tijdens het wachten op bouwvergunning, wordt het uitvoeringsdossier verder uitgewerkt. Hiervoor zullen wij samenwerken met gespecialiseerde partijen die ons de nodige studies aanleveren: EPB- en ventilatieverslaggeving, stabiliteitsstudie, veiligheidscoördinatie, studie technieken en eventuele lichtstudie. Deze integreren we in een compleet aanbestedingsdossier waarmee verschillende aannemers kunnen gecontacteerd worden.
De ontvangen offertes worden door ons in een prijsvergelijking verwerkt, zodat we samen met jullie de meest geschikte aannemer(s) kunnen kiezen voor de uitvoering van het project. In deze fase maken we reeds met jullie een algemene planning op zodat jullie weten tegen wanneer welke materialen moeten vastgelegd worden. Afhankelijk van jullie budget kunnen we jullie ook bijstaan in het verdere ontwerp en de keuze van de materialen van het gehele interieur. Indien jullie hiervoor kiezen, kunnen we alles detailleren om mooi op elkaar te laten aansluiten.
De ontvangen offertes worden door ons in een prijsvergelijking verwerkt, zodat we samen met jullie de meest geschikte aannemer(s) kunnen kiezen voor de uitvoering van het project. In deze fase maken we reeds met jullie een algemene planning op zodat jullie weten tegen wanneer welke materialen moeten vastgelegd worden. Afhankelijk van jullie budget kunnen we jullie ook bijstaan in het verdere ontwerp en de keuze van de materialen van het gehele interieur. Indien jullie hiervoor kiezen, kunnen we alles detailleren om mooi op elkaar te laten aansluiten.
Meten. Organiseren. Contacteren.


Bouwen. Begeleiden. Controleren.
Eens we de aannemer(s) gekozen hebben die jullie woning zullen bouwen, kan er aan de werken begonnen worden. Wij staan jullie gedurende de gehele werffase bij, met periodieke werfcontroles of in functie van de vordering van de werken. Daarbij werken we in nauw contact samen met de aannemer, zodoende de planning en budgetten aan te houden.
Na de voltooiing van de werken volgt een voorlopige oplevering, waarbij we samen een eindcontrole uitvoeren. Hierna kan de woning in gebruik genomen worden. Vanaf het moment van de voorlopige oplevering start de tienjarige aansprakelijkheid van aannemer en architect.
Na de voltooiing van de werken volgt een voorlopige oplevering, waarbij we samen een eindcontrole uitvoeren. Hierna kan de woning in gebruik genomen worden. Vanaf het moment van de voorlopige oplevering start de tienjarige aansprakelijkheid van aannemer en architect.

